Координатор ISEO SP 81 NICKEL довжина 250 мм

Купуй більше – отримай додаткову знижку!
Роздрібна ціна з ПДВ (без вартості монтажу):
3 666,00 грн. з ПДВ
Артикул:
ISE-387809
Є в наявності
Кількість
- + шт Купити
Увага! Цей товар потребує професійного збирання в авторизованому сервіс центрі
Орієнтовна вартість послуги з монтажу (не входить в вартість товару):
від 0 грн.
Виробник:
ISEO Франція
• Тип товару:
Координатор
• Бренд продукту:
ISEO
• Модель аксесуарів дотягувачів:
SP 81
• Тип тяги дотягувача:
Без значення
Повний опис

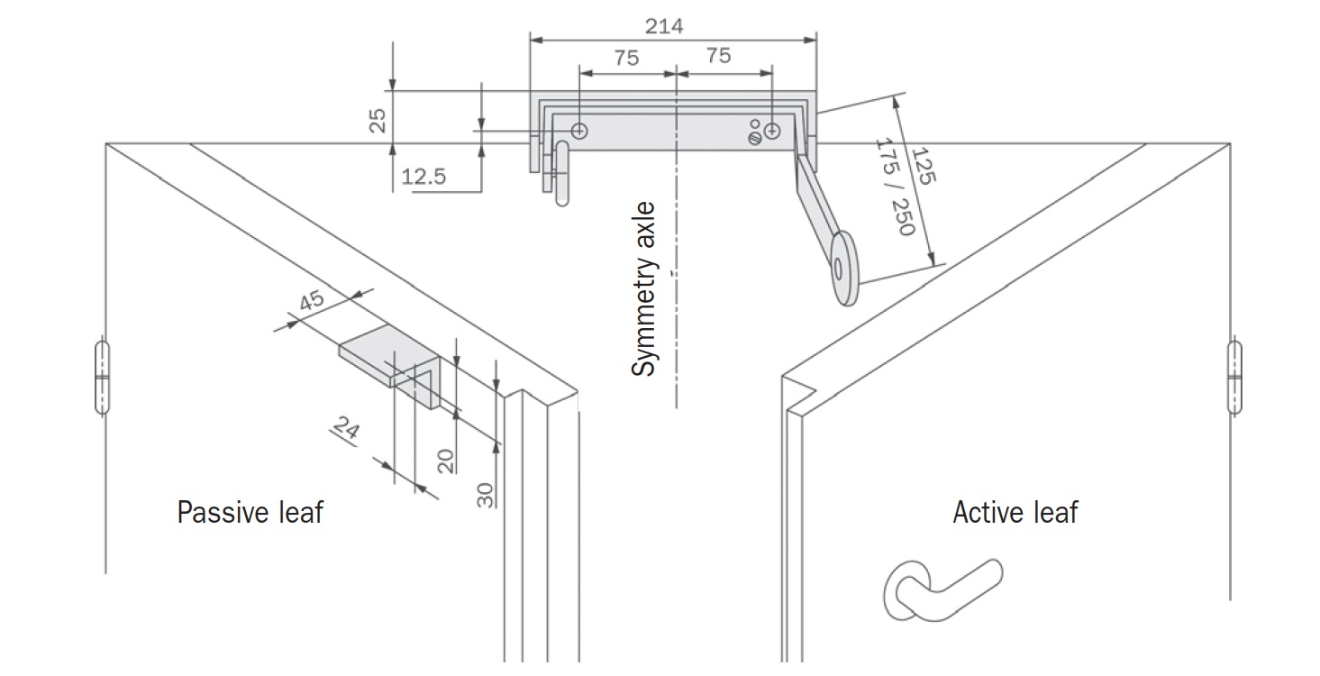
Координатор ISEO   SP 81   NICKEL довжина 250 мм.
Згідно протипожежних норм необхідно, щоб всі протипожежні двері були оснащені пристроями зачинення дверей(дотягувачами), які забезпечують закрите положення дверей, що перешкоджають поширенню пожежі.
Це в рівній мірі відноситься до двостулкових дверей з чвертю, де стулки дверей не рівнозначні, а є поділ на пасивну та активну стулку. Такі двері вимагають використання пристрою синхронізованого закривання дверей - координаторів.
Гравітаційний координатор дверей ISEO SP81 встановлюється на дверній рамі з боку відкривання дверей. Довгий важіль блокує останні кілька градусів закривання активної стулки, до тих пір, поки не закриється пасивна стулка, див. схему і відео.
Поверхневий монтаж координатора не впливає на ступінь вогнестійкості дверей.

Для НЕ протипожежних дверей досить застосування тільки координатора.

Для протипожежних дверей на додаток до координатора необхідно додатково встановлювати пристрій ISEO DS90.
Цей пристрій забезпечує коректність закривання стулок дверей в разі, коли відкривається тільки пасивна стулка (і штовхає на незначний кут активну)
Для вибору моделі координатора, в першу чергу, необхідно визначиться з типом двері - протипожежна чи ні.

Варіант 1, Двері протипожежні, необхідні - координатор SP81 + пристрій DS90:
Для більшості дверей необхідна модель 175 мм., за винятком дверей з пасивної стулкою менш 430 мм ширини.
З пасивної стулкою шириною менше 430 мм необхідна модель 250 мм. *

Варіант 2, Двері не є протипожежні, необхідний тільки координатор SP81.
Для більшості дверей необхідна модель 125 мм., за винятком дверей з пасивної стулкою ширше 830 мм.
З пасивної стулкою шириною більше 830 мм необхідна модель 175 мм. *

Сертифікований згідно EN1158: 3 | 5 | 4/3 | 1 | 1 | 3 |
Для дверей 3 або 4 класів згідно EN1154

Є регулювання висоти важеля для точного налаштування

Матеріал: сталь
Обробка: нікелювання
Масса: 0,65 кг.

* Наведений алгоритм вибору розмірів координатора є приблизними, побудованим на практичних спостереженнях і не претендує на абсолютну істину.

З цим товаром купують
3 901,20 грн.
2 598,00 грн.
Якщо ви знайшли помилку, будь ласка, виділіть фрагмент тексту та натисніть Ctrl+Enter.
Фільтр
Вибір:
Поставте помітки зліва від параметрів, які вас цікавлять і дочекайтеся вспливаючого вікна з кількістю віднайдених товарів
Тип товару
Бренд продукту
Серія дотягувача
*1500 - дотягувачі накладного типу для внутрішніх та зовнішніх дверей *8800 - дотягувачі накладного типу для внутрішніх та легких зовнішніх дверей *9900 - дотягувачі накладного типу для внутрішніх та легких зовнішніх дверей 1000 - дотягувачі накладного типу для надважких великогабаритних внутрішніх та зовнішніх дверей, що підлягають сильному тиску та навантаженню 1200 - дотягувачі накладного типу для внутрішніх та зовнішніх дверей 200 - дотягувачі підлогові маятникового типу для внутрішніх та зовнішніх дверей 2000 - дотягувачі накладного типу для внутрішніх та зовнішніх дверей 2550 - дотягувачі накладного типу для внутрішніх та зовнішніх дверей 3550 - дотягувачі накладного типу для промислових внутрішніх та зовнішніх дверей 400 - дотягувачі підлогові зі зменшеною товщиною корпусу для внутрішніх та зовнішніх дверей 4550 - дотягувачі накладного типу для промислових внутрішніх та зовнішніх дверей, що підлягають сильному тиску та навантаженню 500 - дотягувачі підлогові зі зменшеною товщиною корпусу для внутрішніх та зовнішніх дверей CO-50 - дотягувачі врізного типу для внутрішніх та зовнішніх дверей COU-50 - - дотягувачі врізного типу зі зменшеною товщиною корпусу для внутрішніх та зовнішніх дверей FR - дотягувачі безважільного типу, прихованого монтажу, для дверей та воріт, що відчиняються навстіж, у тому числі для протипожежних дверей і дверей евакуаційних виходів. CAM - з кулачковим механізмом, тобто технологія у якій в якості передаточної ланки між пружинним елементом та шпинделем використовується спеціально профільований кулачок серцевидної форми. R&P - з шестернею та зубчатою рейкою, тобто технологія з гідравлічним контуром та механічною рейковою передачею моменту. Дана технологія забезпечує плавний рух в досить широкому класовому діапазоні та дозволяє більш сильне притискання дверного полотна в момент стиснення дверного ущільнювача, а також швидке захлопування язичка замка чи роликової заскочки замка. GEO PRO - дотягувач комбінованого типу CAM та R&P з ковзною тягою для важких дверей. Функція 2в1.
Модель дотягувача
Оригінальний номер або назва виробника.
Колір обробки
ALUMINIUM – сріблястий BLACK - чорний BLACK/WHITE - комбінований чорно-білий BRASS – латунь BROWN – коричневий DARK_BRONZE – темно-бронзовий DARK_BROWN –темно-коричневий IVORY – колір слонової кістки GLOSSY_WHITE – блискучо-білий GREY_ANTHRACITE - сірий антрацит METALLIC_BRONZE - металево-бронзовий ORANGE - помаранчевий SILVER – срібний SILVER_BRONZE – срібно-бронзовий STAINLESS_STEEL - нержавіюча сталь WHITE – білий
Опції дотягувача
BC – гальмо відчинення BC/DA – гальмо відчинення /уповільнювач зачинення
Тип тяги дотягувача
HO_90°_HINGE_for_SS/ALU/WOOD_DOOR – завіси для металевих/алюмінієвих/дерев`яних дверей з фіксацією HO_90°_HINGE_for_SS/ALU_DOOR – завіси для металевих/алюмінієвих дверей з фіксацією HO_90°_W/O_HINGE – без завіс в комплекті з фіксацією PRL_HO_ARM – тяга паралельна з фіксацією SLD_ARM – тяга ковзна SLD_HO_ARM – тяга ковзна з фіксацією STD_ARM – тяга стандартна STD_HO_ARM – тяга стандартна з фіксацією UNIV_ARM – тяга універсальна W/O_ARM – без тяги
Клас дотягувача
EN_1-2 - дотягувач з можливістю регулювання класу в діапазоні 1-2, що здійснюється шляхом стиснення зворотньої пружини. EN_1-3 - дотягувач з можливістю регулювання класу в діапазоні 1-3, що здійснюється шляхом стиснення зворотньої пружини. EN_1-4 - дотягувач з можливістю регулювання класу в діапазоні 1-4, що здійснюється шляхом стиснення зворотньої пружини. EN_1-5 - дотягувач з можливістю регулювання класу в діапазоні 1-5, що здійснюється шляхом стиснення зворотньої пружини. EN_1-6 - дотягувач з можливістю регулювання класу в діапазоні 1-6, що здійснюється шляхом стиснення зворотньої пружини. EN_2 - фіксований 2 клас дотягувача, без можливості регулювання. EN_2/3 - дотягувач з можливістю регулювання класу в діапазоні 2/3, що здійснюється шляхом переміщення по дверному полотні чи рамі дверей. EN_2/3/4 - дотягувач з можливістю регулювання класу в діапазоні 2/3/4, що здійснюється шляхом переміщення по дверному полотні чи рамі дверей. EN_2/3/4/5 - дотягувач з можливістю регулювання класу в діапазоні 2/3/4/5, що здійснюється шляхом переміщення по дверному полотні чи рамі дверей. EN_2-3 - дотягувач з можливістю регулювання класу в діапазоні 2-3, що здійснюється шляхом стиснення зворотньої пружини. EN_2-4 - дотягувач з можливістю регулювання класу в діапазоні 2-4, що здійснюється шляхом стиснення зворотньої пружини. EN_2-5 - дотягувач з можливістю регулювання класу в діапазоні 2-5, що здійснюється шляхом стиснення зворотньої пружини. EN_2-6- дотягувач з можливістю регулювання класу в діапазоні 2-6, що здійснюється шляхом стиснення зворотньої пружини. EN_2-7+ дотягувач з можливістю регулювання класу в діапазоні 2-7+, що здійснюється шляхом стиснення зворотньої пружини. EN_3 - фіксований 3 клас дотягувача. EN_3/4 - дотягувач з можливістю регулювання класу в діапазоні 3/4, що здійснюється шляхом переміщення по дверному полотні чи рамі дверей. EN_3/4/5 - дотягувач з можливістю регулювання класу в діапазоні 3/4/5, що здійснюється шляхом переміщення по дверному полотні чи рамі дверей. EN_3-5 - дотягувач з можливістю регулювання класу в діапазоні 3-5, що здійснюється шляхом стиснення зворотньої пружини. EN_4 - фіксований 4 клас дотягувача. EN_5 - фіксований 5 клас дотягувача. EN_5-7 - дотягувач з можливістю регулювання класу в діапазоні 5-7, що здійснюється шляхом стиснення зворотньої пружини. EN_6 - фіксований 6 клас дотягувача. EN_7 - фіксований 7 клас дотягувача.
Максимальна вага дверей
Вага дверного полотна
Максимальна ширина дверей
Ширина дверного полотна
Сторонність
LEFT - лівий (завіси зліва , відчинення "на себе") RIGHT - правий (завіси справа , відчинення "на себе") UNIV - універсальний (лівий/правий), зміна сторонності передбачена конструкцією.
Сертифікат для протипожежних дверей за EN1154